Mapa   Ficha
OPORTUNIDAD
Exclusiva vivienda en Roda Golf – Tranquilidad, golf y estilo mediterráneo
San Javier - REF. 3363

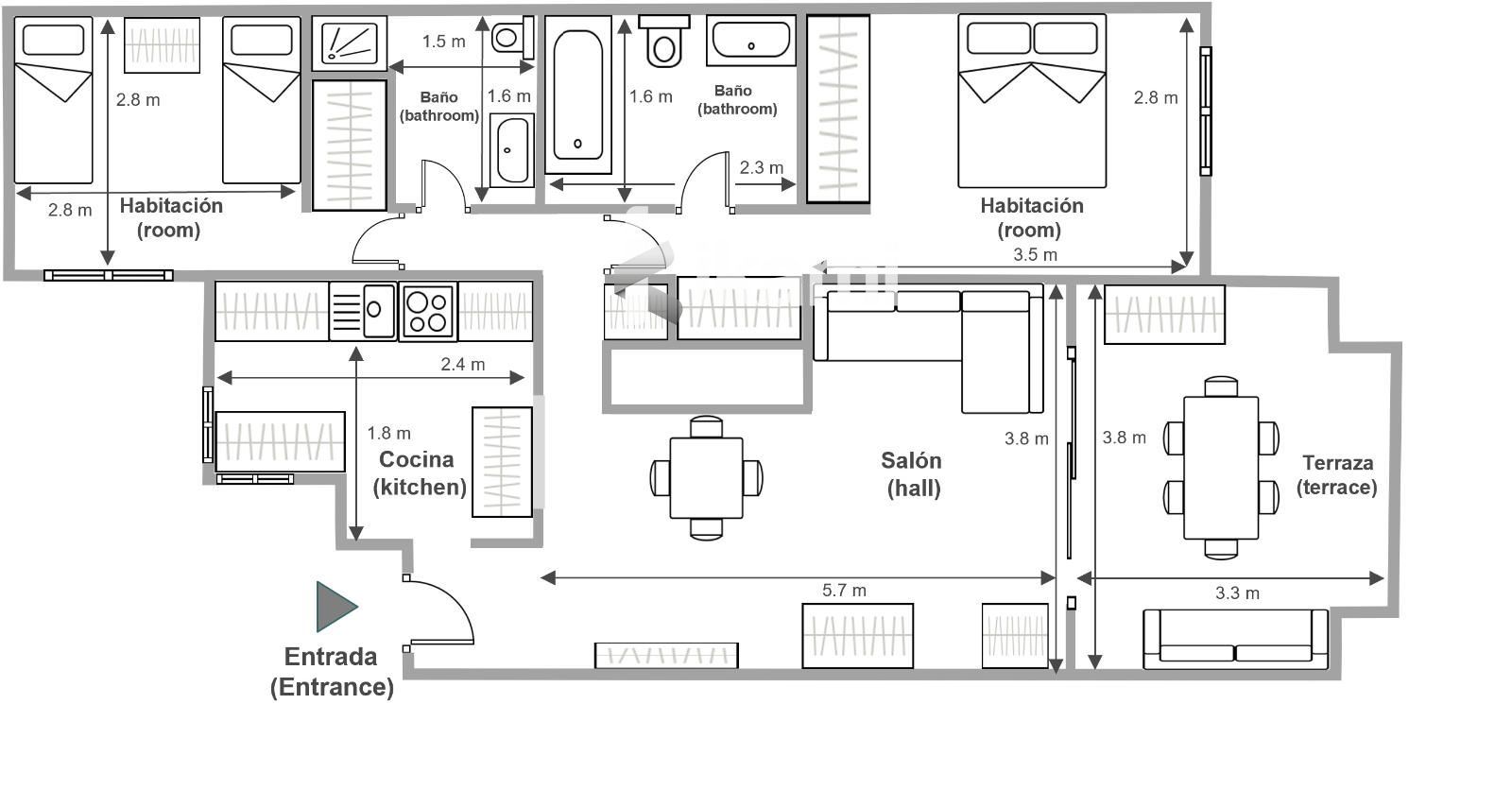
127 m2

14 m2

2

2

1
venta: 199.900 €
Descripción

Descubra esta perfecta residencia en Roda Golf & Beach Resort (San Javier, Murcia), ubicada en una urbanización cerrada con vigilancia 24 horas al día y entorno de máximo nivel. Se encuentra a tan solo 30 minutos del Región de Murcia International Airport y aproximadamente 50 minutos del Alicante–Elche Miguel Hernández Airport, lo que subraya su excelente conectividad. La vivienda, en perfecto estado y lista para entrar a vivir, ofrece una distribución funcional y una calidad constructiva que se aprecia desde el primer vistazo.


Con 127 m² construidos, esta vivienda ofrece dos dormitorios y dos baños completos, articulados alrededor de una generosa terraza con vistas a la piscina y al paisaje del resort. La cocina, completamente equipada, se abre al salón para facilitar la interacción en momentos sociales o familiares. Gracias a su orientación, disfrute de luz natural durante todo el día y de una atmósfera fresca y relajada en un entorno costero.


La propiedad cuenta con trastero y garaje, ubicados en la zona NO INUNDABLE de Roda Golf, lo que aporta seguridad adicional ante cualquier imprevisto climático. Este garaje privado facilita el acceso y la organización del vehículo, eliminando preocupaciones logísticas. La presencia de un trastero complementa el almacenamiento, manteniendo las estancias ordenadas y libres de objetos innecesarios. En conjunto, estas piezas de almacenamiento elevan la comodidad cotidiana y la valorización de la vivienda.


Comodidades y servicios cercanos complementan la propuesta: restaurantes, una gasolinera y supermercados como Lidl, Aldi y Mercadona a corta distancia permiten gestionar compras y salidas sin complicaciones. A solo cinco minutos de la playa, la residencia ofrece un estilo de vida activo y equilibrado, con fáciles comunicaciones y opciones de ocio a la mano. El entorno de Roda Golf incluye campos de golf reconocidos que confieren un importante plus de estilo de vida. 


¡No dudes en contactarnos para concertar una visita!

Características
Precio Venta 199.900 €
Año de construcción 2008
Construidos 127 m2
Precio/m² 1.574
Dormitorios 2
Baños 2
Amueblado
Cocina Amueblada
Calefacción Central con contador individual
Trastero
Terraza
Estado Excelente
Tipo de suelo porcelanico
Ascensor
Piscina comunitaria
Garaje
Zonas comunes
Calificación Energética (E) VER
Luz
Agua
Alarma interior
Vigilancia
Conserje
Vigilancia accesos
Ubicación
La dirección del inmueble es aproximada.
Escalas de eficiencia


Eficiencia Emisiones: 18,40
Eficiencia Consumo: 98,50
98,5
18,4

Tu agente
Sergio Corvalán Sáez
Contáctanos

Si deseas más información sobre esta propiedad, por favor, rellena el formulario.

 Sí, he leído y/o acepto las Condiciones de uso y la Política de privacidad
Inmuebles similares:
 
205.000 €
Ref. 3359  107 m2  3  2

Vive el lujo en plena naturaleza. Este exclusivo apartamento en Náquera combina diseño mediterráneo, spa, piscina con vistas infinitas y preciosas. Tu refugio de bienestar y armonía a tan solo 20 minutos de Valencia y de la playa. Un hogar donde cada día se siente como unas vacaciones.

 
224.000 €
Ref. 2937  55 m2  3  2

¡OPORTUNIDAD DE VIVIENDA SEGREGADA, PERFECTA PARA INVERSIÓN O VIVIENDA HABITUAL!