Mapa   Ficha
Primera linea
Apartamento reformado con vistas al mar en Lo Pagán
San Pedro Del Pinatar - REF. 3301

109 m2

3

2
venta: 274.950 €
Descripción

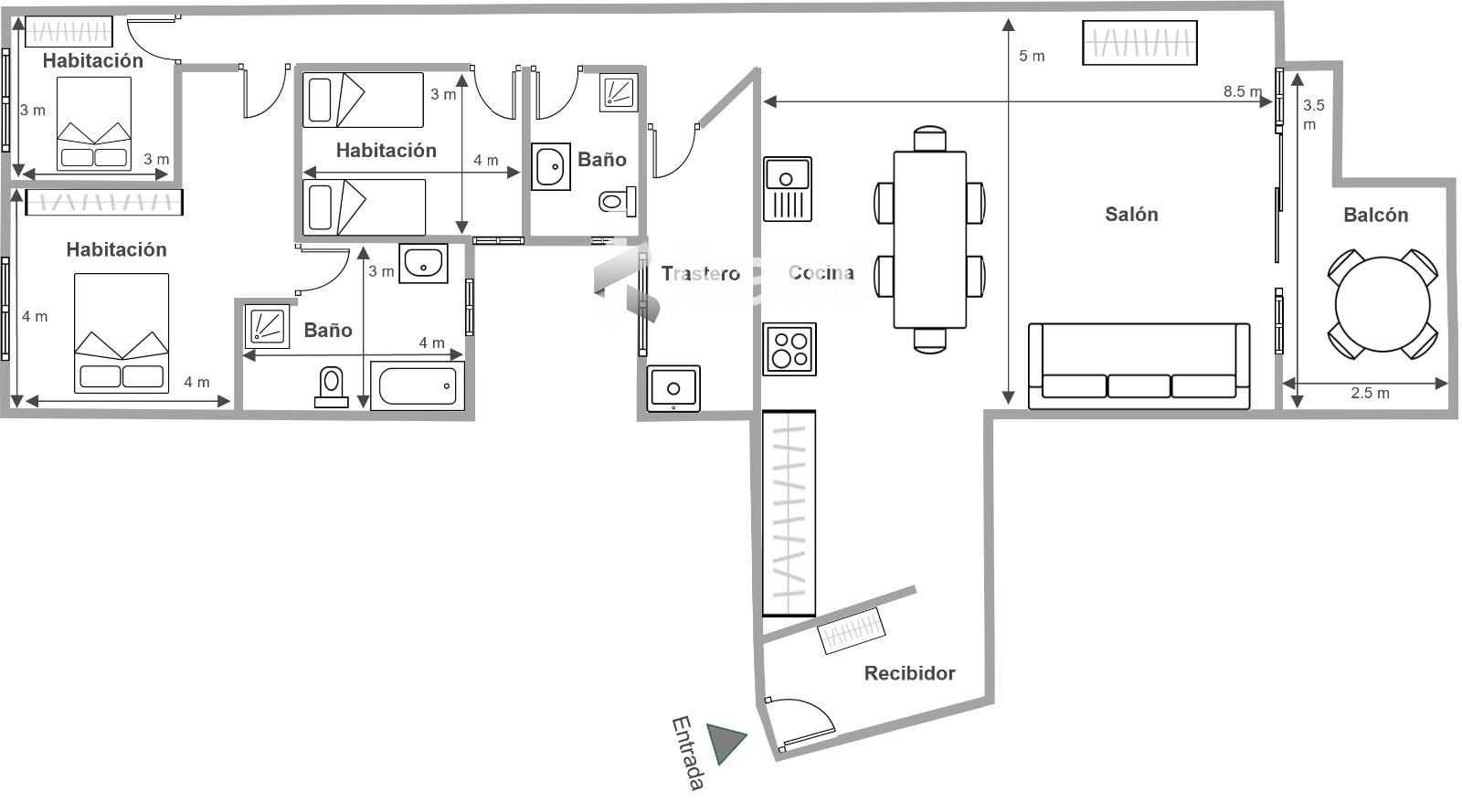
Ubicado en San Pedro del Pinatar (Murcia), este inmueble de 109 m² ha sido reformado recientemente con materiales de calidad y un diseño moderno. Se encuentra listo para entrar a vivir, ofreciendo confort, funcionalidad y una excelente oportunidad de inversión en una zona costera muy demandada.

Distribución y características principales: 3 habitaciones, una de ellas tipo suite con baño completo (bañera + ducha); 2 baños en total, reformados con acabados modernos; cocina amueblada con isla central, funcional y estética; salón comedor amplio y luminoso con acceso a balcón; cuarto de lavado independiente para mayor comodidad; armarios empotrados, calefacción y aire acondicionado con bomba de calor; insonorización y aislamiento térmico en paredes, orientado a la eficiencia energética.

Exteriores y vistas: balcón con vistas panorámicas al puerto de Lo Pagán y playas del Mar Menor; orientación privilegiada para disfrutar del amanecer y atardecer; espacios llenos de luz natural y sensación de amplitud.

Entorno y servicios: parada de autobús justo enfrente; supermercados, restaurantes, bares y comercios a pocos metros; excelente conexión con la autovía hacia Murcia, Cartagena y Alicante; cercanía a playas y zonas de ocio del Mar Menor y Lo Pagán.

Valor añadido: vivienda totalmente amueblada y reformada; ideal como residencia habitual o inversión para alquiler vacacional; alta eficiencia energética, confort y estilo contemporáneo.

Propiedad comercializada por IKAMI ESPAÑA, con atención personalizada y visitas concertadas para descubrir cada detalle de esta vivienda única con vistas al mar.

Características
Precio Venta 274.950 €
Año de construcción 1965
Construidos 109 m2
Útiles 84 m2
Precio/m² 2.522
Dormitorios 3
Baños 2
Amueblado
Cocina Amueblada
Calefacción Aire Acondicionado con bomba de calor
Terraza
1ª línea de playa
Estado Reformado
Tipo de suelo porcelanico
Ascensor
Aire acondicionado
Calificación Energética (E) VER
Luz
Agua
Alarma interior
Ubicación
La dirección del inmueble es aproximada.
Escalas de eficiencia


Eficiencia Emisiones: 26,90
Eficiencia Consumo: 154,90
154,9
26,9

Tu agente
Sergio Corvalán Sáez
Contáctanos

Si deseas más información sobre esta propiedad, por favor, rellena el formulario.

 Sí, he leído y/o acepto las Condiciones de uso y la Política de privacidad
Inmuebles similares:
 
265.000 €
Ref. 3285  163 m2  4  3

Vivienda reformada en primera planta con 130 m² útiles, completamente amueblada y lista para entrar a vivir. Ofrece un salón amplio, cocina equipada, 4 habitaciones y 3 baños. Ubicada en zona céntrica de San Pedro del Pinatar, con servicios, playa y Parque Regional de las Salinas muy próximos. Ideal para vivir o invertir.

 
257.900 €
Ref. 3418  68 m2  3  1

Piso reformado a estrenar, ubicado a 300 metros de metro Villaverde y de Cercanías Madrid, en una zona bien conectada y de demanda constante. El inmueble ofrece 68m2 construidos y 64m2 útiles, distribuidos en tres habitaciones y un baño, ideal para familias o inversores que buscan rentabilidad en una zona con excelente acceso a transporte y servicios. Construcción de 1964, con reforma integral reciente a estrenar que actualiza fontanería y electricidad, incluyendo los mecanismos.